ProdajaStanovaKragujevac.rs

Penthaus sa tri spavaće sobe i dva kupatila - Kragujevac, Aerodrom, 83,78 m2 plus terasa 31,20 m2, u izgradnji

Penthaus sa tri spavaće sobe i dva kupatila - Kragujevac, Aerodrom, 83,78 m2 plus terasa 31,20 m2, u izgradnji
Penthaus sa tri spavaće sobe i dva kupatila - Kragujevac, Aerodrom, 83,78 m2 plus terasa 31,20 m2, u izgradnji
Penthaus sa tri spavaće sobe i dva kupatila - Kragujevac, Aerodrom, 83,78 m2 plus terasa 31,20 m2, u izgradnji

Penthaus sa tri spavaće sobe i dva kupatila - Kragujevac, Aerodrom, 83,78 m2 plus terasa 31,20 m2, u izgradnji

Aerodrom · Atinska

172.816 €
2.062 €/m²

Specifikacije

Kvadratura
83.78 m²
Struktura
4.0+ sobe
Sprat
4/3
Grejanje
etazno_struja
Lift
Da
Parking
Da
Terasa
Ne
Gradnja
Novogradnja
Datum
2026-03-16 10:12:17

Opis oglasa

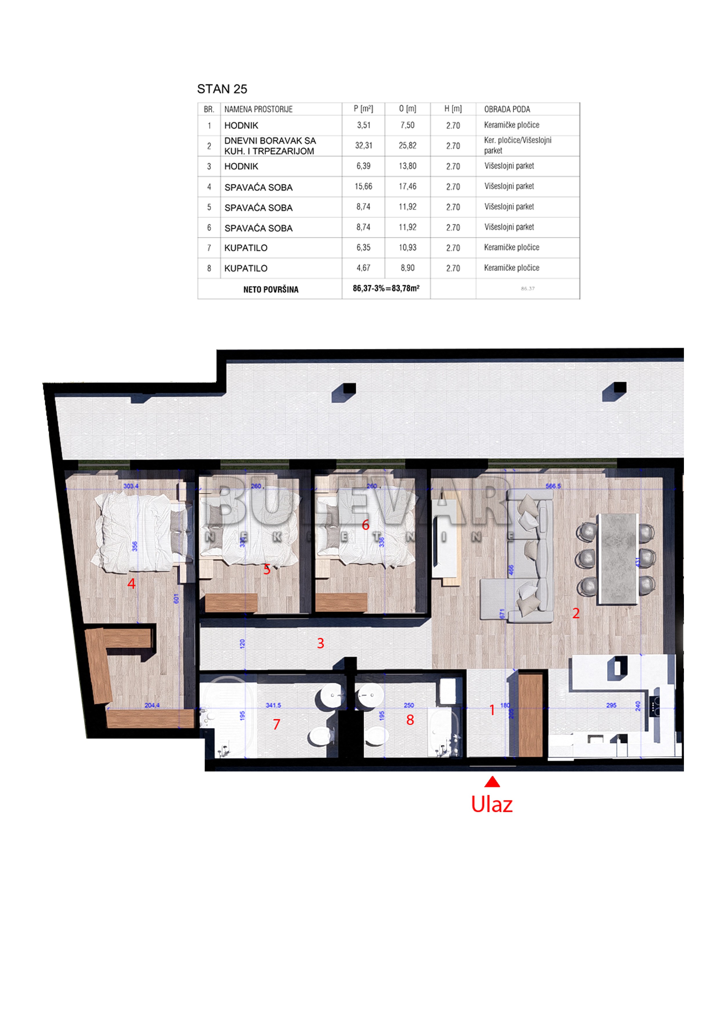
Na prodaju stan površine 83,78 m2, u izgradnji u Kragujevcu, u naselju Aerodrom, u blizini marketa, stadiona, škole, vrtića, pijace, autobuskog stajališta. Penthaus, koji uz hodnik ima i dnevni boravak sa trpezarijom, tri spavaće sobe, dva kupatila, i naravno terasu površine 31,2 m2. Objekat se gradi u skladu sa visokim energetskim standardima, zida termoblokom plus izolacija. Stolarija je od šestokomornih profila sa troslojnim staklom punjenim argonom i aluminijumskim zastorom. Završna obrada je od keramičkih pločica prve klase i tarketa. U stanu će biti postavljen inverter klima uredjaj. Grejanje na gas. Postoji mogućnost kupovine i garažnog mesta (10.000,00 eura plus PDV) ili parking mesta (5.000,00 eura plus PDV), koje nije uračunato u cenu. Zgrada je spratnosti Pr+3S+Po, na kome je i smešten ovaj stan. Planirani završetak radova na zgradi je polovina 2027.godine. Kupuje se direktno od investitora i postoji mogućnost povratka PDV-a, ako kupac ispunjava uslove za to. Za sve informacije i razgledanje stojimo vam na raspolaganju, radnim danima od 09-19h i subotom od 09-17h. Ovu i druge nekretnine sa većim brojem fotografija možete pogledati na našem sajtu: bulevarnekretnine.rs, kontakt: info@bulevarnekretnine.rs, usluga besplatna. Čekamo Vas. Telefon 034/330808 i 060/0544253. Bulevar Nekretnine 034, Kragujevac, broj u registru posrednika: 1278.

Lokacija

Kontakt agencije
PS
Bulevar Nekretnine
Licencirani posrednik
+381184151485
ID oglasa: #13902
Sigurna kupovina
  • Licencirani posrednik
  • Provera vlasništva
  • Pravna podrška
  • Bez skrivenih troškova